土地
細島宮ノ上土地
公開日 : 2025年12月05日 最終更新日:2025年12月05日
畑として使用できます
- 宮崎県日向市細島
- JR日豊本線日向市駅まで4800m
| 価格 | 26万円 |
|---|---|
| 坪単価 | - |
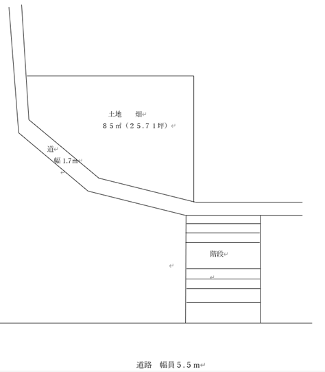
| 土地面積 | 85㎡ |
| 物件種別 | 土地 |
物件詳細
| 地目 | 畑 | 地勢 | - | ||||||||
|---|---|---|---|---|---|---|---|---|---|---|---|
| 用途地域 | - | 都市計画 | 市街化区域 | ||||||||
| 土地面積 | 85㎡ | 土地面積計測方式 | |||||||||
| 現況 | 引渡/入居時期 | 相談 | 取引態様 | - | |||||||
| 学校区 | 細島小学校 富島中学校 | 周辺環境 | - | ||||||||
| 設備・条件 | - | ||||||||||
| 特記事項 | 【お問合せ先】 有限会社東和ハウジング 宮崎県日向市原町1丁目4番5号 TEL:0982-54-0606 |
||||||||||
| 自社物 | - | 状態 | 売出中 | ||||||||
| 物件番号 | akiyabank49 | 掲載期限日 | - | ||||||||
マップ
Loading...
この物件のお問合せ
〒882-0035
延岡市日の出町2丁目1-1
延岡市日の出町2丁目1-1
- 免許番号宮崎県知事××××号
- 所属団体延岡日向宅建協同組合
- 所属公正取引協議会(一社)九州不動産公正取引協議会






