中古戸建
北方町川水流 中古住宅200万
公開日 : 2025年12月05日 最終更新日:2025年12月05日
作業場、店舗付きの物件です。
- 宮崎県日南市北方町川水流1704-4
- JR日豊本線延岡駅
上水流バス停バス停まで徒歩3分
| 価格 | 200万円 |
|---|---|
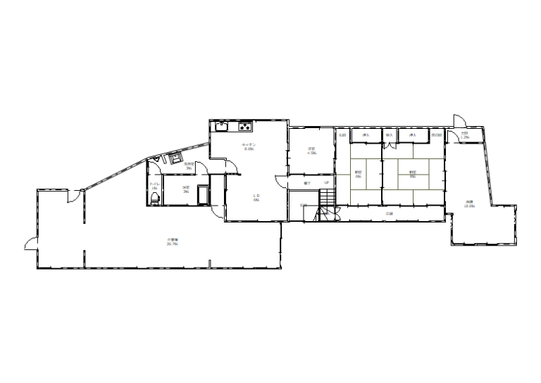
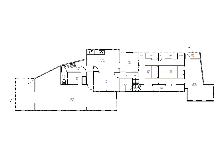
| 間取 | 6LDK |
| 建物面積 | 130.98m²(39.62坪) |
| 土地面積 | 279.08㎡ (84.42坪) |
| 物件種別 | 中古戸建 |
| 築年月 | 1972/5 |
物件詳細
| 間取 | 6LDK 1階:和8帖、和6帖、和4.5帖、LDK14.6帖、作業場26.7帖、店舗10.6帖、2階:和7.5帖、洋9.8帖、洋6.5帖、倉庫5.9帖 |
||||||||||
|---|---|---|---|---|---|---|---|---|---|---|---|
| 建物構造 | 木造 | 新築/中古 | 中古 | ||||||||
| 面積 | 130.98m²(39.62坪) | 面積計測方式 | - | ||||||||
| バルコニー | - | 向き | - | ||||||||
| 建物階数 | 地上2階建て | 部屋階数 | - | ||||||||
| 地目 | 宅地 | 地勢 | 高台 | ||||||||
| 用途地域 | 無指定 | 都市計画 | 都市計画区域外 | ||||||||
| 土地面積 | 279.08㎡ (84.42坪) | 土地面積計測方式 | |||||||||
| 国土法届出 | 不要 | 建ぺい率 | - | 容積率 | - | ||||||
| 土地権利 | 所有権 | 接道状況 | 一方 | ||||||||
| 接道1 | 西 間口20m 幅員10m 公道に接道 | 位置指定道路1 | - | ||||||||
| 現況 | 空家 | 引渡/入居時期 | 即時 | 取引態様 | 専任 | ||||||
| 学校区 | - | 周辺環境 | ・ひえいの郷 | ||||||||
| 設備・条件 | - | ||||||||||
| 物件番号 | 287394 | 掲載期限日 | 2025/12/30 | ||||||||
マップ
Loading...
この物件のお問合せ
〒882-0841
延岡市大瀬町3-1-5
延岡市大瀬町3-1-5
- 免許番号宮崎県知事(3)4764
- 所属団体延岡日向宅建協同組合
- 所属公正取引協議会(一社)九州不動産公正取引協議会




